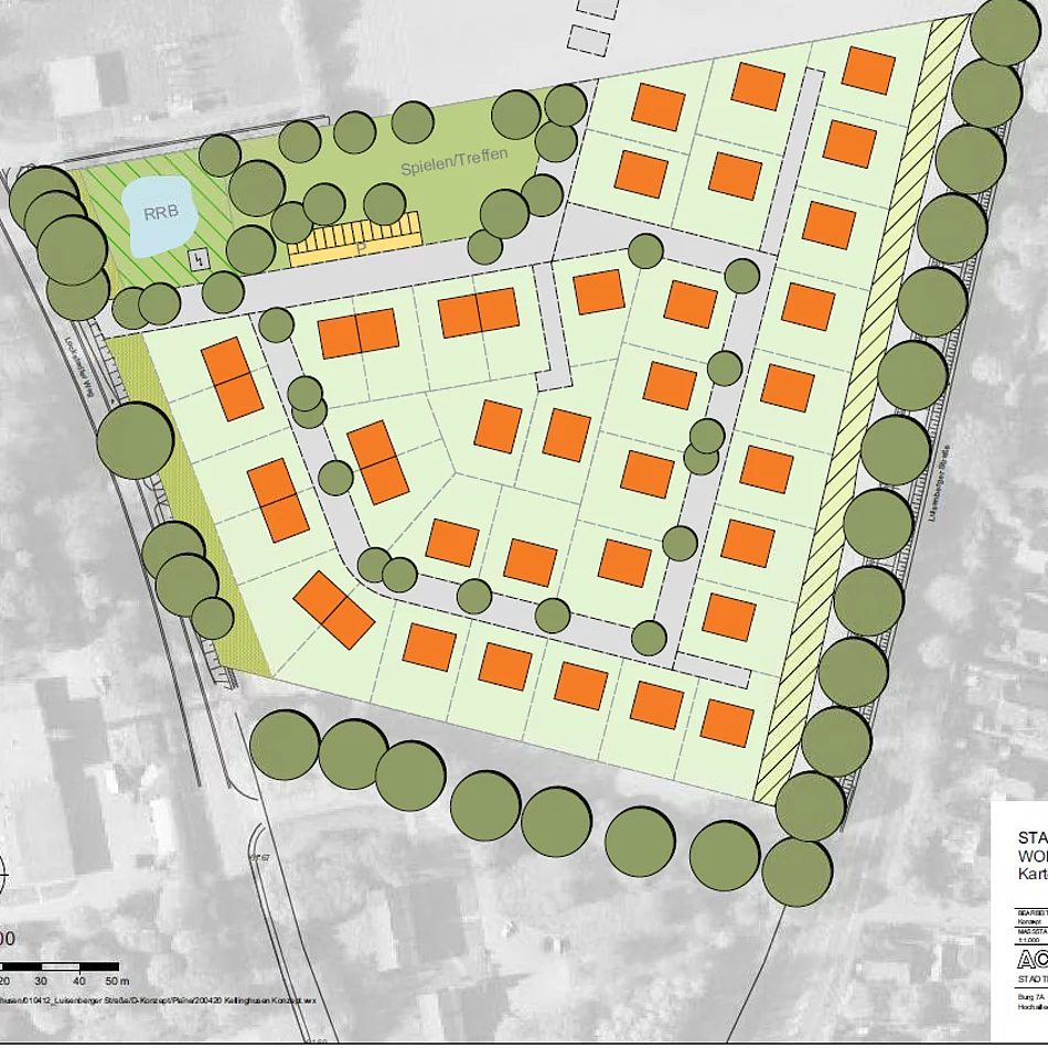
Öffentliche Ausschreibung "Luisenberger Feld" der Stadt Kellinghusen

Öffentliche Ausschreibung des Bieterverfahrens zum Verkauf der Fläche der Stadt Kellinghusen am Lockstedter Weg an einen Investor zur Entwicklung des Wohnquartiers „Luisenberger Feld“